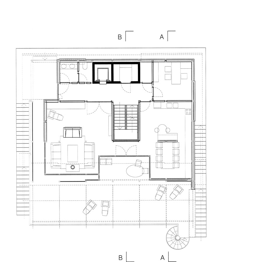
11. Casa unifamiliare in legno

Riva del Garda, 2005

Un pensiero ad un amico ideale in una posizione ideale nell’impetuoso paesaggio lacustre del Garda porta ad elaborare una riflessione a tutto tondo sulle materie e i materiali della residenza privata.

Questa villa, nemmeno tanto piccola, pone in essere materia architettonica e la ordina secondo schemi logici prodotti dal telaio in legno. La qualità, se così la vogliamo chiamare, sta nell'articolazione formale degli spazi esterni e interni in ordine alle varie occasioni abitative che la soluzione organizza.