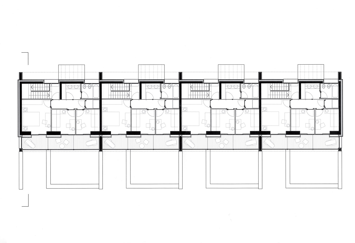
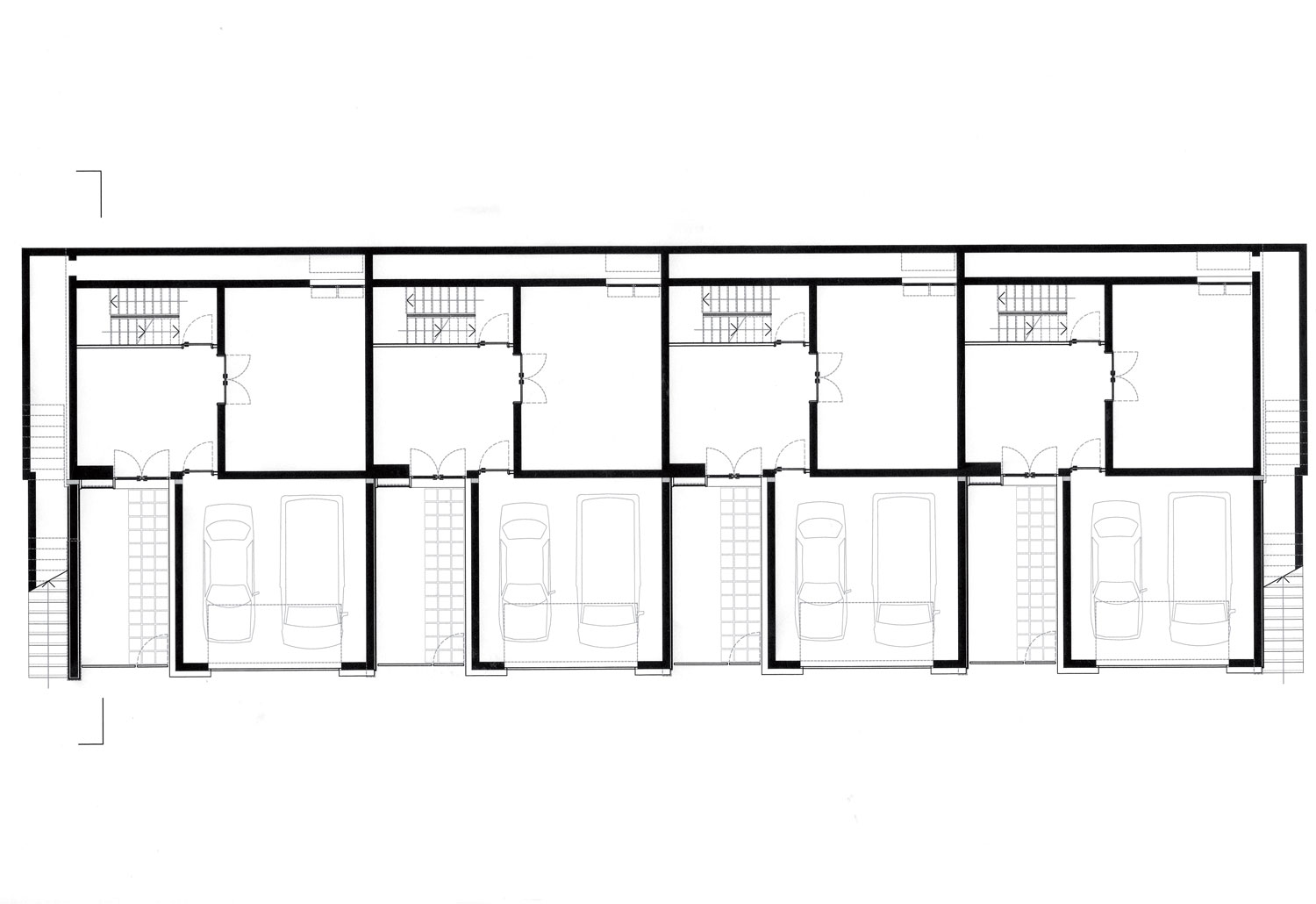
13. Case a schiera ecosostenibili

Collina di Trento, 2009

L’attuale problema dell’housing non sposta di una virgola il dibattito rispetto a tutta la ricerca del secolo scorso, con la sola aggiunta dell’ecocompatibilità. L’alloggio più che mai ora dovrà essere possibilmente orientato lungo il lato est-ovest; dovrà avere gli ambienti abitabili e relative abbondanti vedute rivolti verso sud, mentre quelli di servizio avranno le aperture per la sola ventilazione nella parte retrostante; inoltre è opportuno che le facciate est ed ovest siano cieche.

I balconi e gli sporti della copertura dovranno proteggere i piani sottostanti dagli eccessi del soleggiamento estivo. Oltre a una buona protezione termica, dovranno essere dotati di sistemi fotovoltaici e sistemi solari per l’accumulo di energia elettrica e termica che nel presente caso trovano alloggio sul terrazzo praticabile.