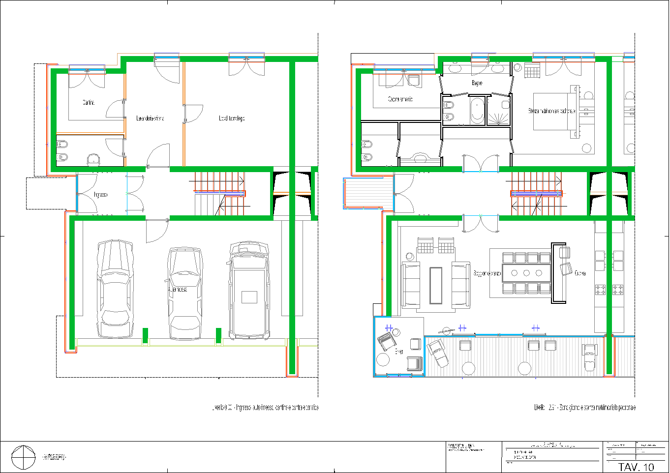
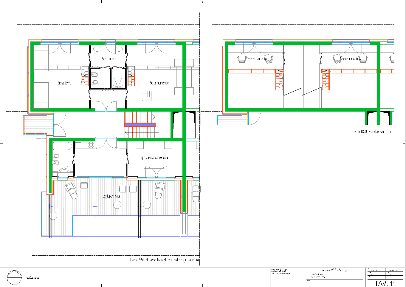
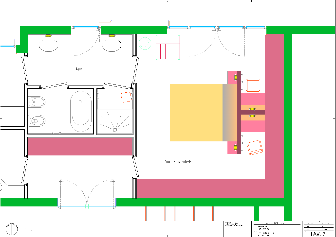
21. Duplex bifamiliare in Bardolino sul lago di Garda

Due alloggi gemelli di standards abitativi elevati - Gennaio 2016

La presente elaborazione deve la sua possibilità alla famiglia Bassani Raimondi di Bardolino, che ha avuto l'idea di servirsi di una professionalità disponibile alla sperimentazione. Il bisogno sentito di due fratelli di realizzare la propria dimora ha portato alla ricostruzione di un luogo già saturo di edilizia anni '50 obsoleta e di nessuna qualità. Il tema edilizio, già sintetizzato nel titolo, realizza due unità abitative simmetriche e affiancate.