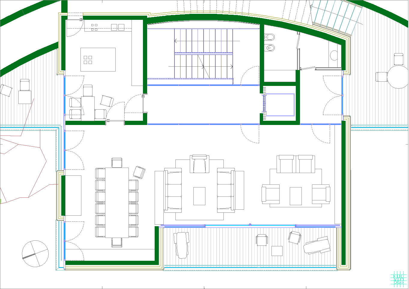
32. "EL BARRANCO": residenza per vacanze e sede della fondazione di famiglia.

In California, nella Contea di Orange, tra le località di San Juàn Capistrano e San Clemente, a ridosso del mare l'insediamento intende capovolgere la logica insediativa della villa residenziale tradizionale. (estate 2014-giugno 2017)

Tutto nasce tre anni or sono in una crociera alle isole Eolie. Mia figlia Liviana, per l'occasione aiuto-skipper di un gruppo velico di Bolzano, mi invita improvvisamemte a sostituire un cliente impossibilitato a parteciparvi. L'occasione è ghiotta perché è praticamente gratis. Mi precipito con il primo aereo disponibile e sono in tempo a salire a bordo. Strada facendo, riesco ad adattarmici, vista la mia totale impreparazione sia materiale che di spirito.

A bordo incomincio lentamente a familiarizzare con i miei compagni di viaggio: gruppo eterogeneo e cosmopolita, il cui comune denominatore è l'interesse per la vela; gente facoltosa con la quale mi trovo in iniziale difficoltà per via delle mie origini umili orgogliosamente e dignitosamente difese con discrezione.

Strada facendo -ma forse bisognerebbe dire mare facendo- conosco una copia di sposi californiani, tali Goldman-Aguirre, i quali sono patrocinatori di una loro fondazione per la divulgazione della cultura locale. Il mio inglese è quasi zero, ma non zero. Con lo spagnolo ci azzecco molto di più. Da questa congiuntura nasce uno spanglisch, sorta di minestrone del tutto personale, che ci consente di comunicare in maniera quasi eccellente.

Le cose sono migliorate ancora di più quando questi signori vengono a sapere che io, già vent'anni or sono, sono stato proprio da quelle loro parti e che per me la California non è proprio una terra sconosciuta, dal momento che ricordo benissimo di avere percorso l'intera costa da San Diego fino a Santa Barbara.

Ed è da queste premesse e da altre discussioni piacevolissime legate al sole magnifico del Tirreno e del vino generoso del Sud che veniamo a parlare della "Grande Arte" che adombra sempre nei miei interessi. In questa circostanza i miei sono anche i loro interessi, in quanto stanno andando in cerca della materializzazione di un sogno di famiglia: la realizzazione di una residenza al mare come dépendance della fondazione di famiglia presso la città di Irvine, che dista non più di venti minuti di automobile. Questo luogo dovrebbe essere momento sia di convivialità di carattere culturale che di relax per invitati di riguardo che volessero riposarsi un po'.

Ed è così che, a crociera ultimata, i signori Goldman-Aguirre, tornati nella loro regione di origine, pensano di contattarmi per una idea sul loro progetto. Nella loro mente non è previsto un progettista americano, bensì qualcuno che sappia reinterpretare un luogo particolarmente ricco di potenzialità in una maniera nuova di vedere l'architettura. Non desiderano nemmeno un nome importante ed affermato perché giustamente pensano che l'autoreferenzialità dell'Archsystem inevitabilmente finisca per rendere un'architettura nata per quel luogo un oggetto da rivista patinata. Pensano anche che la discrezione debba richiedere l'anonimato. Desiderano esplorare il sito con occhi diversi alla ricerca di qualcosa di più azzeccato per esprimere al meglio il Genius loci di quella terra altrettanto aspra e generosa come il vino delle isole Eolie.

Alla loro richiesta, mi precipito anche questa volta con l'aereo e perlustro attentamente l'area su cui dovrebbe sorgere questa costruzione: il sole e i venti caldi californiani, la natura della roccia, alcune tecniche costruttive consolidate ma, soprattutto, la linea del paesaggio sia dalla strada litoranea che dal mare per alcuni chilometri. I rilievi successivi mi permetteranno di meglio indirizzare i miei orientamenti progettuali.