19. Palazzo per uffici a forte densità edificativa nell'area dell'ex macello comunale di Mezzolombardo
Questo lavoro nasce da una personale elaborazione all'interno di una ricerca didattica nell'anno 2015 durante il Laboratorio di Tesi finale del Corso di Laurea di Ingegneria Edile-Architettura presso il Dipartimento di Ingegneria Civile, Meccanica e Ambientale di Mesiano di Trento.
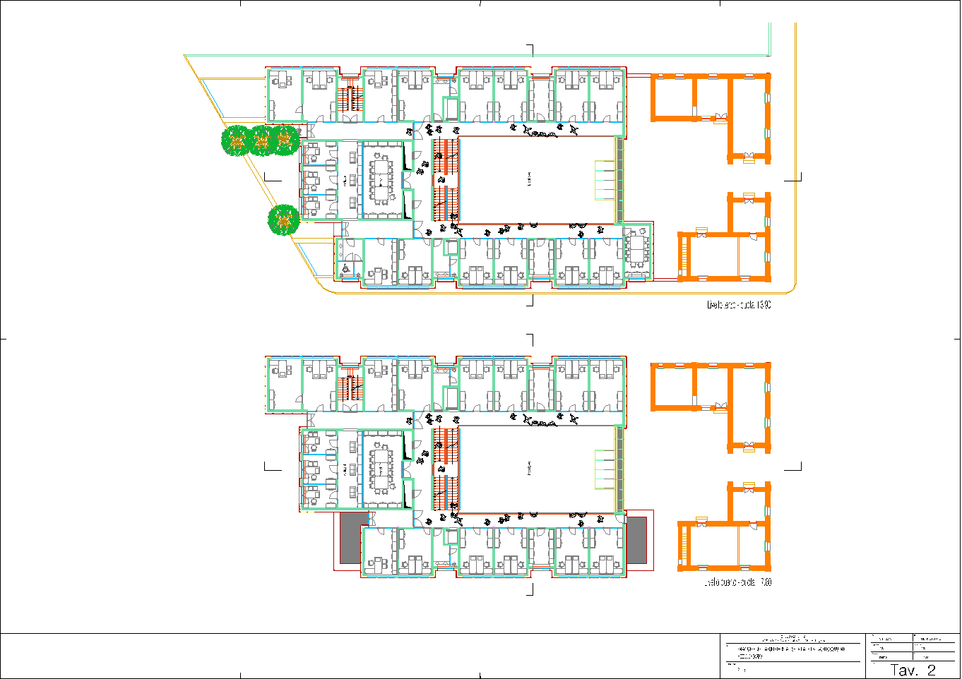
La sfida non è una delle più semplici: cercare di insediare un edificio a forte densità volumetrica in area già edificata. Questo tema, ormai di uso corrente nella realtà urbanistica del Vecchio Continente, è in linea con le politiche territoriali che vogliono che non si consumi più territorio agricolo e che le nuove edificazioni avvengano all'interno dell'area urbanizzata.
Ovviamente, spessissimo si tratta di demolizioni di aree obsolete ed edificate con criteri già a suo tempo dichiarati discutibili, oppure si tratta di aree produttive dismesse, che attendono una loro riconversione, oppure ancora si tratta del tentativo di aumentare la densità edificatoria per ottenere dei benefici insediativi altrimenti non raggiungibili. Non di rado, però, queste realtà devono convivere con presenze storiche talvolta ragguardevoli, oppure, e questo è il caso, si tratta di realtà di non eccelso interesse storico, ma che una corretta ed interessante riprogettazione fa diventare tali.
La storia dell'ex macello di Mezzolombardo vuole essere uno di questi casi. Edificato verso i primi anni del ventesimo secolo, esso arriverà ad esaurire il proprio compito durante gli anni Ottanta, poiché una legge, che vuole riorganizzare detto servizio con standard qualitativi di livello europeo, lo definisce superato. Così la struttura, di proprietà comunale, rimarrà abbandonata per almeno un quarto di secolo.
Tipologicamente, ma anche sotto molti aspetti formali, l'ex macello rispecchia uno standard tipico di quegli anni. E' una costruzione a corte, dotata di ampio portico d'ingresso fortemente monumentalizzato, con una parte retrostante che riprende l'arco iniziale per trasformarlo in accesso a spazi coperti. Lateralmente la corte dispone di costruzioni basse di completamento al servizio. Un discreto lavorio ornamentale, fatto di pietra calcarea alternata a listature in mattoncini, rende gradevole l'insieme, sui riquadri delle finestre.