29. Progettare nel paesaggio a Milano.

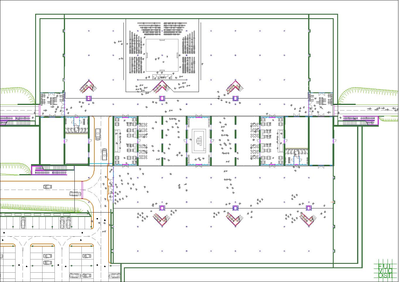
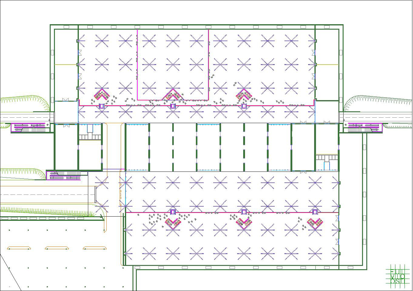
Nel Parco Lambro, a scavalco di una infrastruttura e facendola propria, trova luogo un complesso volto a favorire l'attività fieristico-espositiva e ad accogliere iniziative culturali e di appoggio all'attività ricreativa dell'area. (primavera 2017)

Nella prospettiva di completare programmaticamente i servizi in dotazione del Parco Lambro, il Municipio 3 del Comune di Milano individua la possibilità che l'Ente Parco Lambro promuova la progettazione di una struttura fieristica che raduni in sé contenuti di presentazione, promozione e divulgazione della cultura materiale del tempo libero, in considerazione dell'esistenza del parco e del vicino Idroscalo. Questa struttura dovrà avere i relativi servizi di ristorazione e un infopoinkt adeguatamente dimensionato alla promozione dell'Ente.

Particolarità di questa struttura è che essa dovrà nascere nelle adiacenze della viabilità interna al parco preesistente alla nascita dello stesso, che sembra improbabile rimuovere per superiori problemi di collegamento territoriale.

Il luogo è l'inizio della zona operativa del parco a sud dello stesso e la strada in argomento è via Federico García Lorca.