46. La metafora del paesaggio tra la calda matericità delle opere di Barragán e le tense campiture di Rothko.

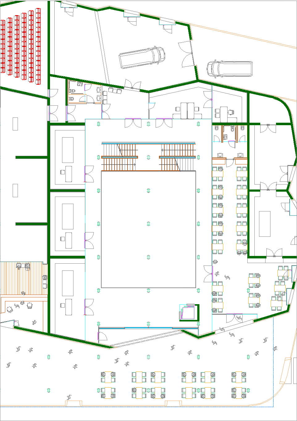
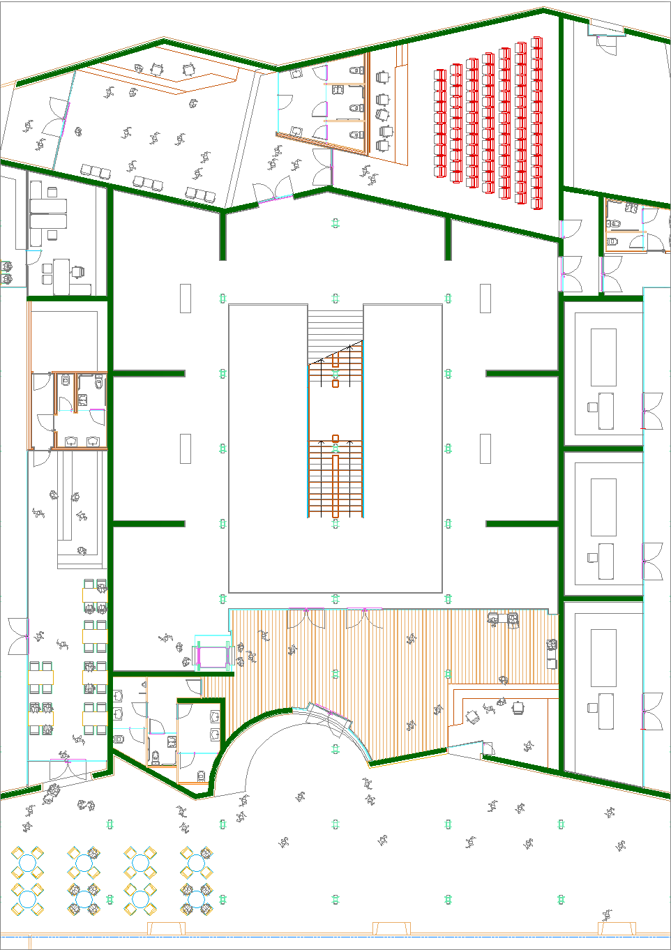
Progetto per il centro operativo del Parco Nazionale di Talampaya nella provincia di La Rioja, Argentina. Una visita recente con gli amici argentini Etelvina ed Ernesto nello spettacolare Parco Nazionale di Talampaya ha suggerito al progettista suggestioni e sensazioni per la presente proposizione di un moderno centro operativo e per l'accoglienza dei numerosi visitatori. (aprile-maggio 2019)

"Coerenza genetica, non corrispondenza formale.

Di fronte alle molteplici elaborazioni possibili presentate dai progetti cui si è accennato può forse suscitare perplessità il fatto che non sempre si riconosce corrispondenza formale con il paesaggio. Ma non pare che si debba richiedere questo all’architettura, cioè che le costruzioni assomiglino al paesaggio preesistente, che vi entrino in rapporto basandosi su criteri formali, quando, invece, una coerenza culturale, genetica, che trovi la sua logica nelle radici geografiche e storiche di ogni specifico luogo e ne mantenga l’essenza. Si è già detto che il paesaggio è una sorta di palinsesto la cui ricchezza deriva dalla molteplicità di forme e stili ivi deposti dalla storia. Dunque, il paesaggio non richiede somiglianza di apparenze, ma continuità di senso.
La dove il paesaggio sfugge e manca di personalità, perché né il sito né la storia lo hanno sufficientemente connotato, l’architettura può, comunque, conferirgli un’identità, come in alcuni casi sopra considerati."
Giuliana Andreotti, Per un'architettura del paesaggio, pag. 183, Valentina Trentini editore, 2008

In questo caso, dove la storia non lo ha connotato perché area desertica difficilmente vivibile, il sito con il suo travolgente paesaggio carico di energia sovrasta ogni altra considerazione. Allora l'architettura può conferirgli un'identità, senza confusione di ruoli e senza troppi artifici che ne indeboliscano le radici fondative del proprio essere. Ed è questo che abbiamo cercato di far in questo progetto.

El Parque Nacional de Talampaya, nella provincia argentina di La Rioja nel nord-ovest andino, riserva momenti di grande e drammatica spettacolarità, caratterizzato come è da un grande canyon eroso da un fiume che scende dalle Ande e che lo percorre per decine di chilometri, scavando trincee che arrivano anche a oltre centotrenta metri di altezza in un suolo caratterizzato da arenaria rossa, segno evidente della presenza del minerale ferro che adombra su buona parte della cordillera andina. Queste stratificazioni, più a ovest vicino alla cordillera stessa, trovano degli innalzamenti apocalittici a seguito delle spinte della piattaforma sudamericana che si spinge verso ovest di circa due centimetri all'anno e che hanno portato, attraverso le ere geologiche, all'innalzamento del più esteso sistema montuoso che si conosca. Va detto che anche detti rilievi subiscono tuttora delle spinte in alto nella misura di un centimetro all'anno.

Inquadrato il fenomeno dentro queste coordinate geomorfologiche, va detto che la sensazione che se ne trae, dopo la sua visita, è di una solitudine cosmica tutt'altro che emotivamente rasserenante. La drammaticità è data dal forte contrasto di queste formazioni a fronte di un paesaggio perfettamente orizzontale costituito da argilla rossa oggetto dell'erosione del sistema.

Che gli abitatori da sempre (di alcuni millenni, come evidenziano i petroglifos, le incisioni rupestri del luogo) abbiano convissuto con queste realtà paesaggistiche, ci consente di affermare che le loro risorse al fine della costruzione dei propri villaggi non poteva che essere l'argilla cotta al sole che dallo spagnolo prende il nome di adobe, il quale proviene dall'arabo che lo mutuò, a sua volta, dall'egizio. Ci piace pensare che anche così venissero chiamati dagli ebrei di Mosé durante la loro cattività egiziana nel secolo XII a. C.

Ed è con questa realtà che noi ci siamo permessi di misurarci, nel momento in cui abbiamo sentito il desiderio di dare concreta risposta a un nuovo e funzionale centro di accoglienza per turisti.