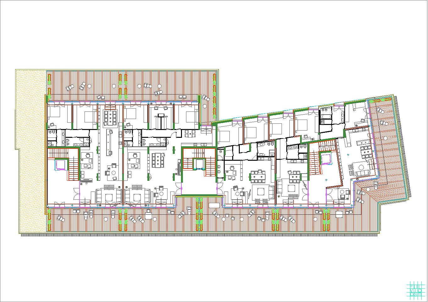
37. Riqualificazione urbana in Via Degasperi A Mezzolombardo - Palazzine d'angolo con Corso del Popolo.

Nella definizione della piazza è fondamentale il presente progetto, che annulla il parcheggio all'angolo e definisce lo spazio pubblico. (novembre 2017- gennaio 2018)

Il presente progetto trova luogo all'interno del più generale progetto a scala urbana che definisce la ristrutturazione e rifacimento della viabilità di superficie della più generale via Degasperi. L'incrocio storico mai risolto e mai volutamente affrontato nei decenni scorsi, quando di pose il problema dell'apertura della nuova viabilità per sottrarre il traffico di transito da via Garibaldi e Mazzini, in questo progetto trova una sua definizione attraverso la materializzazione di uno spazio urbano definito da una palazzata di nuova concezione dietro alla quale si nascondono significativi volumi adibiti sia al terziario che al residenziale.