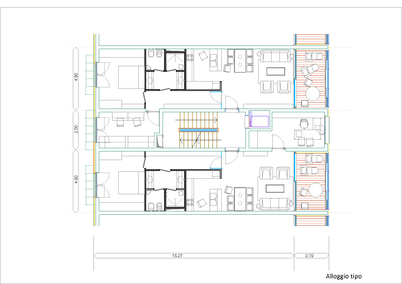
56. Unità di abitazione (seconda ipotesi)

Questo secondo progetto, rispetto al primo, ha la particolarità di avere contenuto la larghezza del cortile-giardino interno alla stretta misura dello spazio necessario per alloggiare una doppia spina di automobili nei parcheggi dei piani interrati. (Settembre 2020-Gennaio 2021)

Maggiore attenzione si è prestata agli alloggi che sono del tipo passante a doppio affaccio, che presentano una profondità totale di diciotto metri, loggia compresa. Inoltre essi hanno un taglio costante (tutti bilocali) ma flessibile sia nell'offerta che nell'ipotesi di una mobilità interna nel tempo, potendo passare infatti da bilocali a monolocali e trilocali con il semplice scambio di superfici.