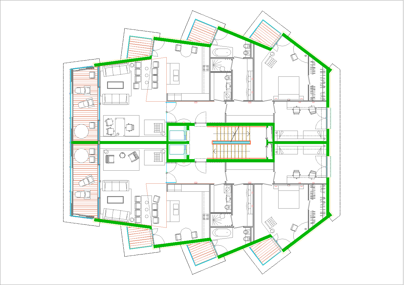
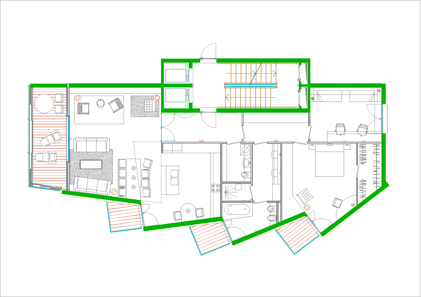
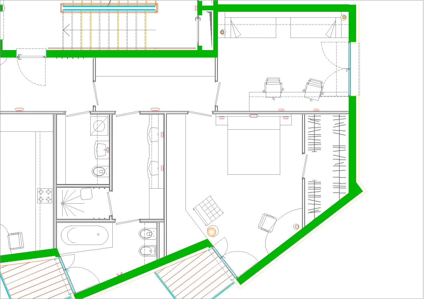
47. Torre sperimentale per alloggi a costo medio e buona vivibilità.

A seguito di un'indagine riguardo alle migliori realizzazioni di residenze di alto costo a Milano negli anni recenti, il progettista è stimolato a riflettere sull'alloggio di fascia alta inteso come spazio dove eccelle la vivibilità. (dicembre 2018-giugno 2019)

Ripensare il tema della residenza urbana, oltre che ad arricchire personalmente chi ne è l'artefice di tale operazione, permette di mettere a fuoco sistematiche possibilità di avanzamenti sia progettuali che critici. Consapevoli che un progetto deve avere una sua patria (un luogo su cui essere impostato sin dall'inizio), e questo è dogma tanto più che le critiche al moderno sovrabbondano, l'idea di metterci al lavoro parte proprio dalle considerazioni sulle ultime realizzazioni in prossimità di City Life, dove i maestri della contemporaneità hanno dato saggio delle proprie capacità. Non dobbiamo dimenticare nemmeno che il costo/m2 di 12.500 € impone soluzioni che non possono sfuggire alle attenzioni di chi cerca criticamente qualità in quegli spazi.