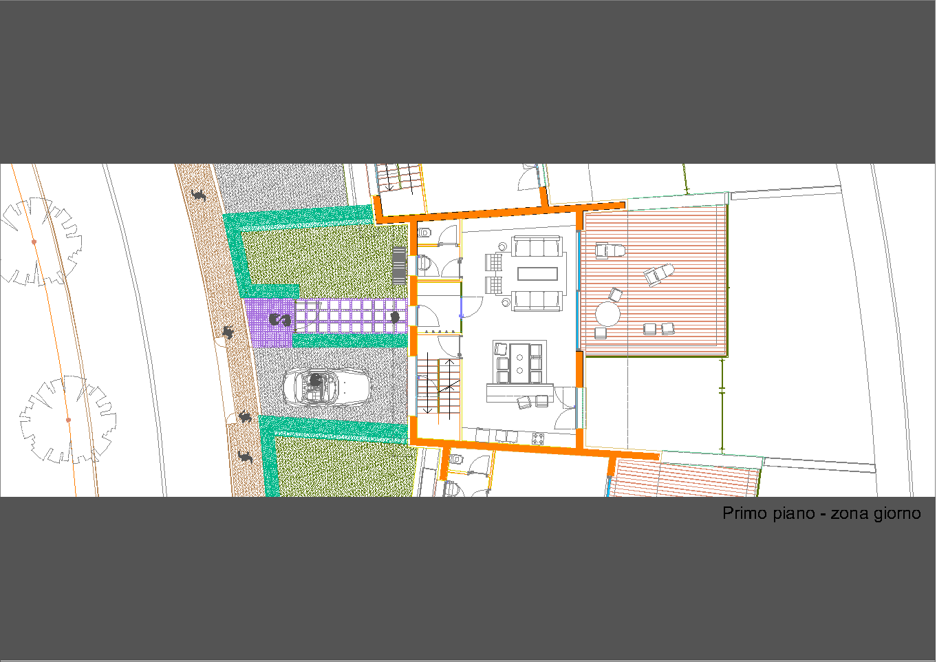
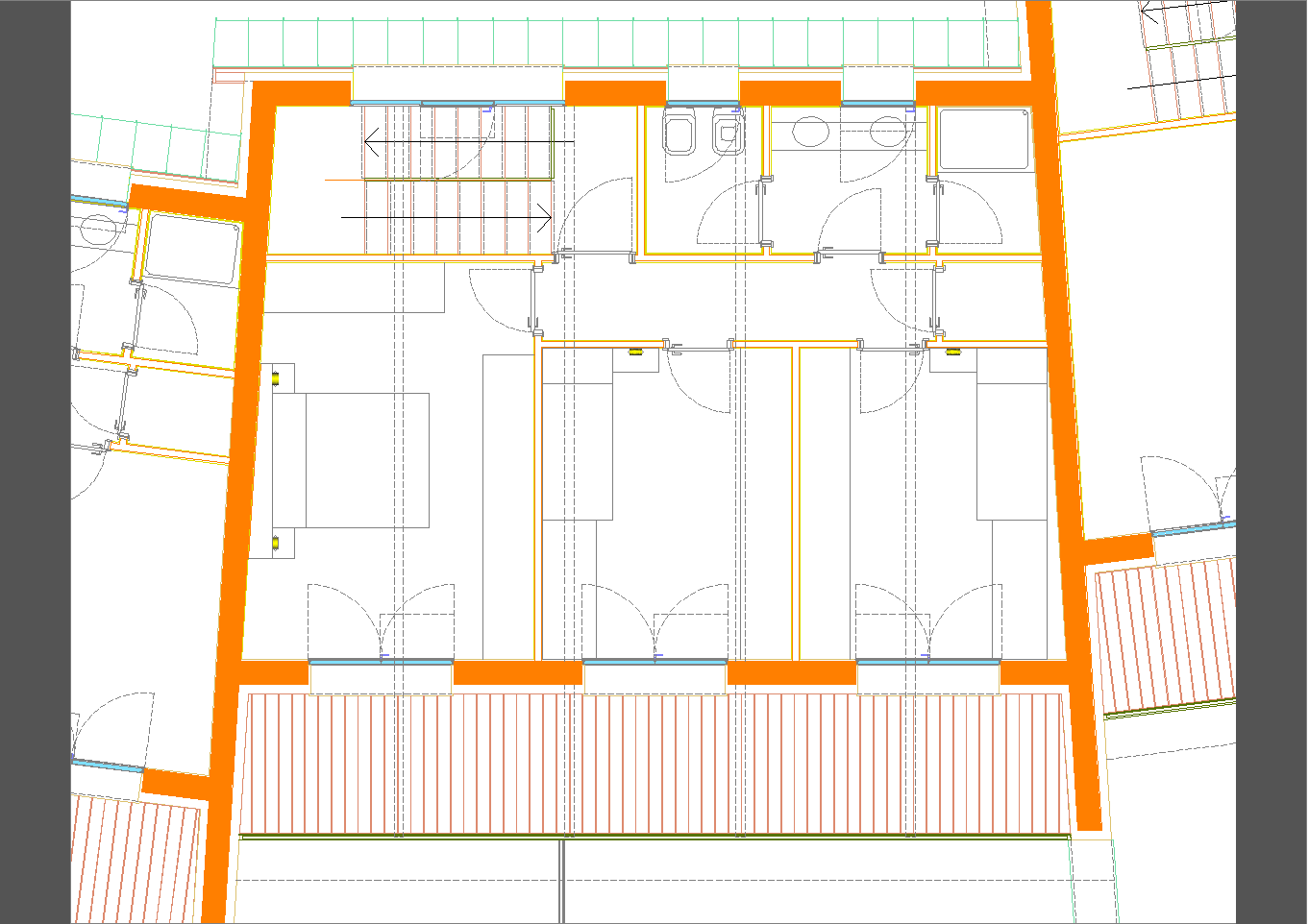
53. Schiera su pendio

Un tema di edilizia residenziale a schiera offre l'occasione al progettista di sperimentare tecniche d'intervento nuove. (febbraio - marzo 2021)

Il problema è semplice ed è antico quanto l'uomo: cercare la ripetibilità in situazioni non scontate relative a una strada-percorso matrice in sensibile pendenza e non rettilinea. Essa detta la ritmica dei volumi e le relazioni spaziali trai le singole unità edilizie. La voluta presenza di volumi tecnici delle autorimesse scandisce la metrica e permette interessanti spazi della vivibilità familiare, nonché permette di trovare l'individualità sempre agognata delle singole unità.