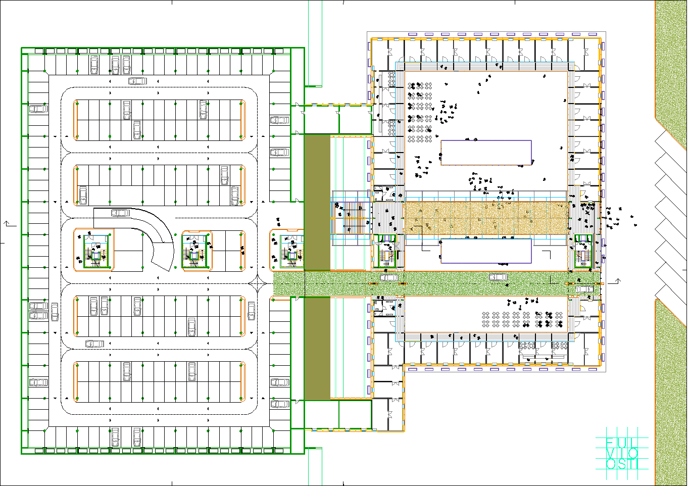
28. Un residence per pellegrini-turisti nell'impossibile violabilità dell'eremo di Camaldoli, nel Parco Nazionale delle Foreste Casentinesi, comune di Foppi, provincia di Arezzo.

In un'epoca in cui l'architettura non è più in grado di creare organismi che rimangano impressi nel tempo e non fantasmi usa e getta come in quest'oggi liquido in cui tutto scorre e poco lascia traccia feconda di sé, il ricorso ai "fondamentali antropologici" che l'opera dell'uomo su questo territorio ha elaborato nei secoli forse può ripagare di forti contenuti valoriali. (2016-2017)

Durante l'estate dell'anno 2013, a seguito della visita da parte del progettista e consorte, dopo avere approfondito la conoscenza di questi luoghi anche con l'aiuto dell'allora Priore di Camaldoli con il quale è stato possibile un pregnante anche se breve colloquio, l'idea di pensare ad un insediamento umano di una certa dimensione, che rispondesse al bisogno sempre più evidente di dare risposta al turismo di pellegrinaggio, incominciò a fare capolino nella mente di chi scrive.

Il tema, tutt'altro che facile e scontato, si scontra con l'esistenza del Istituto Parco Nazionale delle Foreste Casentinesi, che opera felicemente da più di mezzo secolo con riconoscimenti internazionali. Come è riportato nel titolo, l'impossibile violabilità dell'Eremo di Camaldoli e dintorni ne suggella le difficoltà.

Nonostante ciò, e a dimostrazione che la perseveranza di un'idea sta alla base delle vicende umane che fanno la storia quotidiana di questo mondo, il progettista avanza sommessamente una propria proposta.