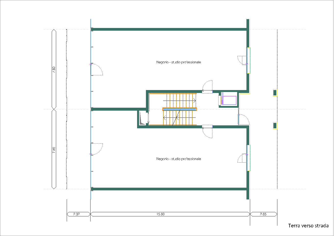
49. Unità di abitazione.

Studio per una unità residenziale pensata per una media periferia urbana da riqualificare: alloggi, negozi, uffici e laboratori assieme a parco interno privato e parcheggio interrato. (marzo-aprile 2020)

L'analisi della situazione attuale delle nostre periferie urbane ci suggerisce di individuare logiche insediative nuove e più consoni allo sfacelo delle stesse causato dalla mancata pianificazione del dopo guerra. L'individuazione di un modulo che possa essere l'inizio di uno sviluppo in profondità del tema in oggetto, suggerisce la reinterpretazione di un insediamento a "isola" che sappia rivedere gli schemi che nel passato hanno fornito interessanti contributi alla città.