14. Villa familiare ecosostenibile su pendio

Collina di Trento, 2009

Per le sue qualità formali e le attenzioni agli aspetti ambientali, questa casa padronale potrebbe inserirsi nel paesaggio della collina di Trento, così variegato per la presenza di una congerie molto articolata ed eterogenea delle costruzioni che la caratterizzano realizzate in questo ultimo mezzo secolo di vita.

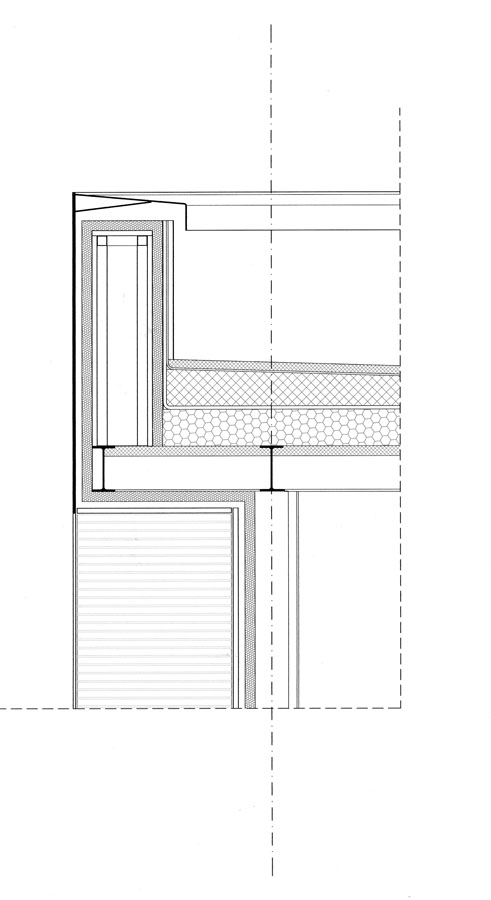
Le caratteristiche costruttive consistono in un telaio strutturale metallico di profili HEA 200 rivestito con elementi stratificati a secco. Le parti esterne sono rifoderate mediante lamine di acciaio cor-ten di tre millimetri di spessore, la cui rigidità comporta l’asciuttezza delle forme che definiscono il progetto.

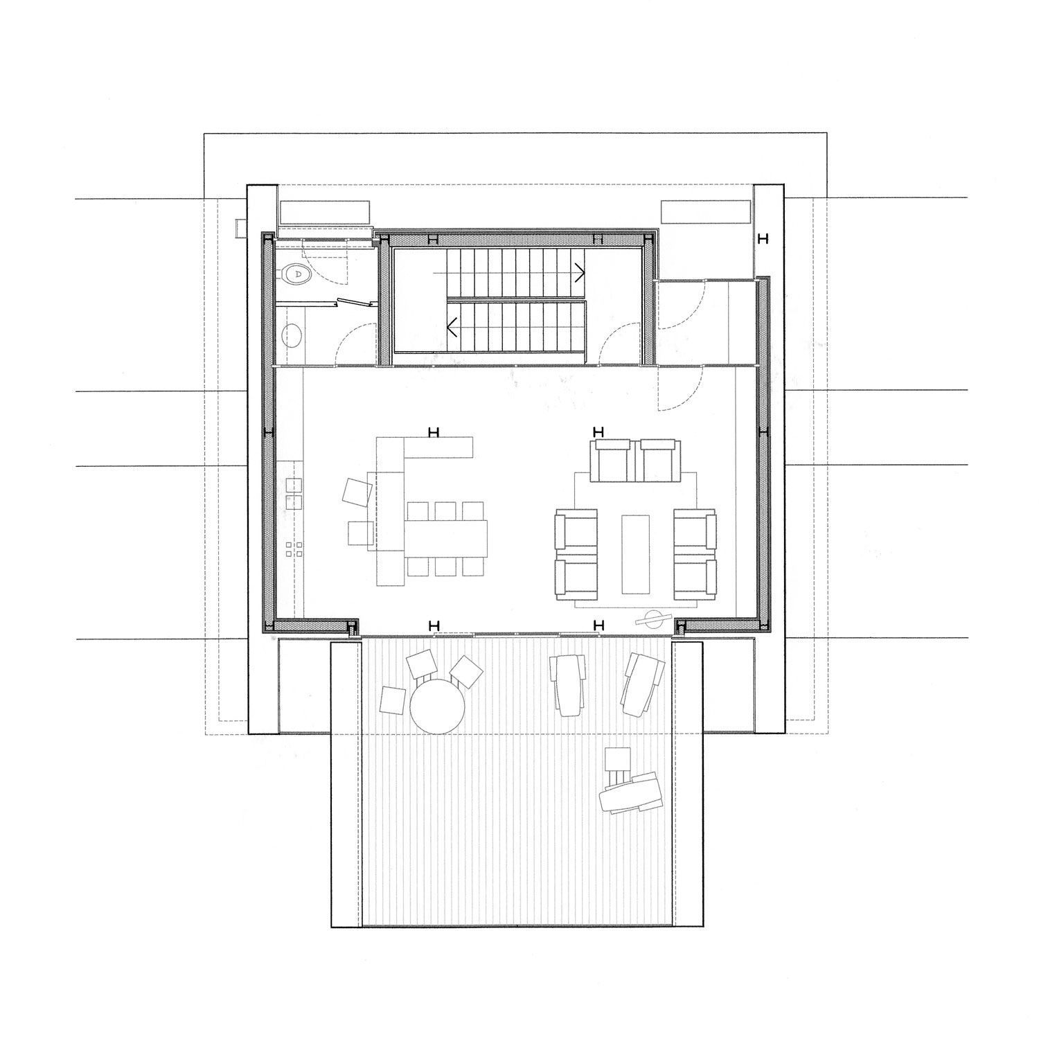
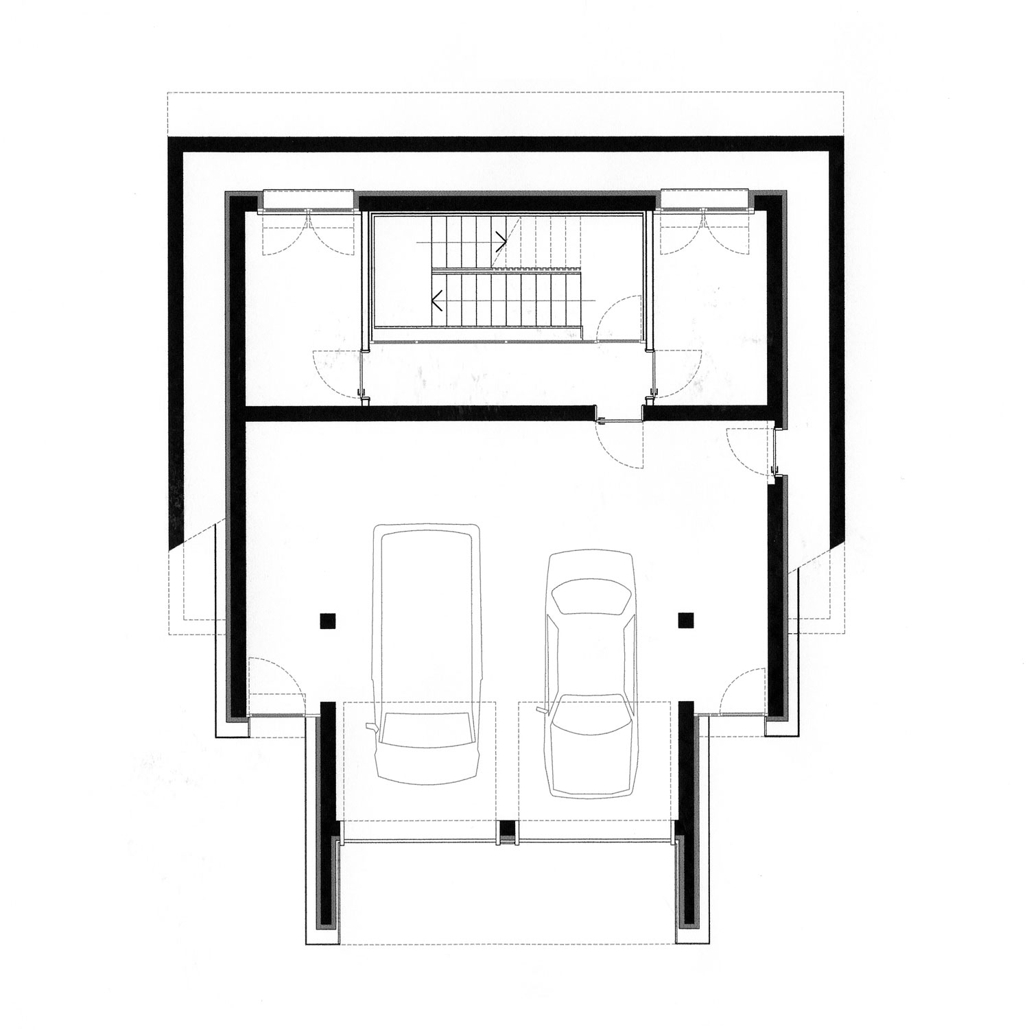
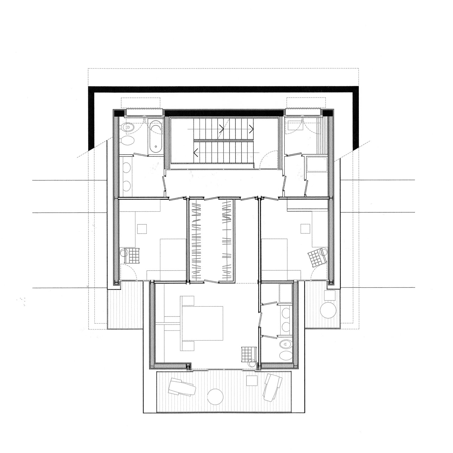
L’alloggio a due livelli di vita si dispone su un forte pendio e si caratterizza come un gioco di slittamento di scatole incastrate. L’accesso dall’alto comporta un rovesciamento delle consuete disposizioni: in alto la zona giorno e in basso le stanze. Anche qui, come nei casi precedenti, le parti abitabili sono verso il sole, mentre gli spazi di servizio vengono relegati a nord.

Gli affacci rigorosamente a sud permettono una forte captazione dei raggi solari durante la stagione fredda, mentre abbondanti sporgenze garantiscono il necessario ombreggiamento durante l’estate; per contro, le facciate est e ovest sono cieche per non esporsi ai raggi solari radenti estivi.

La copertura a terrazzo permette un’agile disposizione dei pannelli fotovoltaici in abbondante quantità.